PROJETOS DE ESTRUTURAS ESPECIAIS
Projeto de estruturas em concreto armado e assessoria na construção das obras civis de plantas de pré-tratamento em mineração de diamantes, Lunda Norte, Angola (Odebrecht Mining Services Inc.)
Projeto estrutural e geotécnico dos túneis nas vias marginais do Rio Jordão (Túneis Prefeito Augusto Lucena), Boa Viagem, Recife
(ATP Engenharia Ltda / URB - Recife) 
 Projeto estrutural em pré-moldados da estruturas de contenção e revestimento do Canal do Rio Jordão, no bairro de Setúbal, Recife 
(ATP Engenharia / URB Recife)
Projeto estrutural da estação de tratamento de esgotos - ETE Minerva, bairro de Dois Unidos, Recife (Unitec / FIDEM)
Ponte da Batalha, Rodovia PB-04, Santa Rita - PB.  Projeto do escoramento emergencial com estrutura metálica e fundações em tubulões  a arcomprimido devido ao colapso do encontro em função das cheias do Rio Paraíba (Jatobeton Engenharia / DER-PB)
Estrutura para sistema de captação de água do SAA de Irecê no Rio São Francisco-BA. Projeto de fundações em tubulões a ar comprimido e superestrutura em concreto armado e vigas de aço (GPO SOLVI ENGENHARIA / EMBASA)
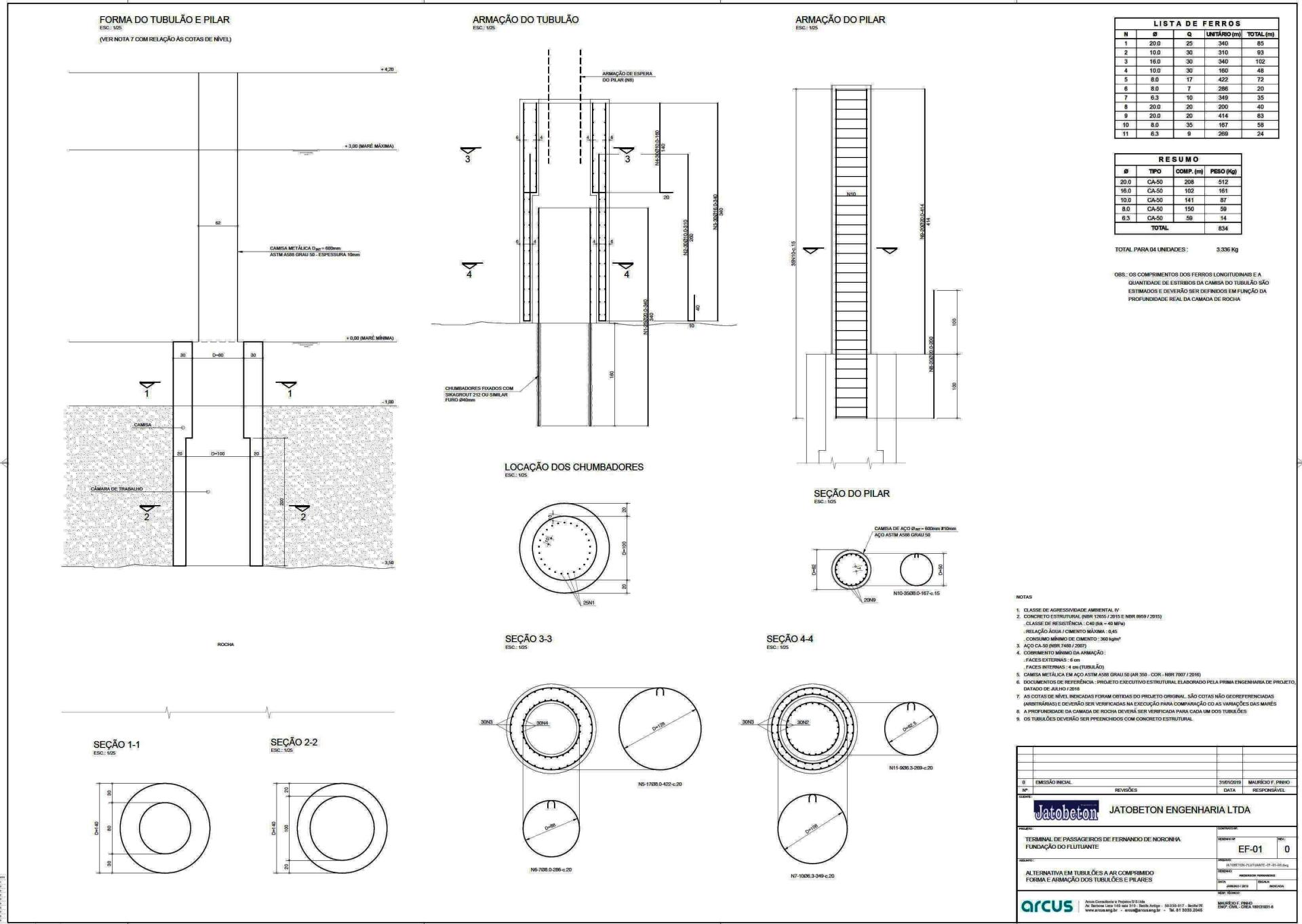
Projeto das fundações em tubulões a ar comprimido para a estrutura do flutuante do Porto de Fernando de Noronha 
(Jatobeton Engenharia / Governo de Pernambuco)
Projeto do tunnel liner sob ferrovia no sistema de drenagem pluvial de Lunda-Angola (Carmon Reestrutura Serviços Técnicos Lda)
Projeto do sistema de macaqueamento da Ponte da Lagoa do Roteiro - AL-101, incluindo avaliação da cargas da estrutura e projeto dos consoles metálicos para 120 tf cada, com utilização de chumbadores químicos (Jatobeton /DER-AL)