PROJETOS DE PONTES E VIADUTOS
 Ponte sobre o Rio Capibaribe com extensão 100m em concreto protendido, Paudalho - PE (DER-PE)
Projeto de duas pontes sobre o Rio Cuango com extensão de 48m em estrutura metálica, Projeto Luzamba (mineração de diamantes), 
Província da Lunda Norte, Angola  (Odebrecht Mining Service Inc.)
Ponte sobre o Rio Ipojuca em concreto protendido, extensão 50m, Gravatá-PE (Construtora Ancar / Prefeitura de Gravatá)
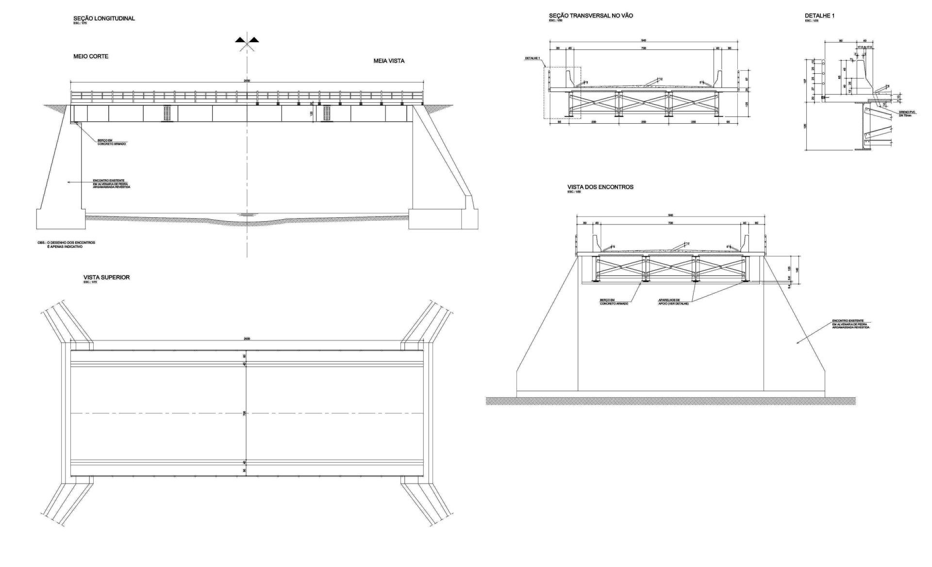
Projetos de reabilitação de antigas pontes de concreto com uso de superestruturas mistas (vigas metálicas), Angola (ENGEVIA / INEA)
Ponte sobre o Rio Mamanguape na Rodovia PB-79 em Alagoa Grande, com extensão de 50m em concreto protendido (DER-PB)
Ponte sobre o Rio Aterro com extensão de 25m em concreto protendido no acesso à fábrica de Elizabeth Cimentos - PB
(Thenge Engenharia Elizabeth Cimentos)
Ponte sobre o Rio Moxotó com extensão de 70m na Rodovia PE-265, Sertânia-PE. Reformulação do projeto de fundações (estacas metálicas) e da infra e mesoestrutura (Contek Engenharia Ltda / DER-PE)
Ponte sobre o Rio Espinhara na Acesso Sul de Patos-PB com extensão de 140m em concreto protendido com fundações em tubulões
(Construtora Ancar / Prefeitura de Patos)
Ponte sobre o Rio N'Dalatando, Província Cuanza Norte, Angola com extensão de 26m. Superestrutura mista (vigas de aço e laje de concreto) com aproveitamento dos encontros da antiga ponte (Engevia / INEA)
Projeto das obras de arte especiais do prolongamento da Av. Prudente de Morais, zona norte de Natal-RN em concreto protendido e encontros integrais (Thenge Engenharia / DER-RN)
Passagem desnivelada na Av. Hoji Ya Henda sobre o Caminho de Ferro de Luanda com extensão de 80m em concreto protendido e fundações em microestacas em ferro dúctil, Luanda, Angola (Carmon Reestrutura Lda)
Duas pontes sobre o Rio Pirapama, Cabo de Santo Agostinho-PE com extensão de 120m em concreto protendido e fundações em estacas pré-moldadas protendidas  (Siena Engenharia Ltda / CONE)
Viaduto do Nó Viário da Unidade Operativa, acesso ao Aeroporto Internacional de Luanda, Angola,extensão de 240m e largura de 19,40m
(Carmon Reestrutura Lda / China Railway 20 Bureau Group Corporation (CR20) / Ministério da Construção)
Passarela de pedestres sobre a Rodovia PB-16, João Pessoa  em concreto armado e protendido (Projeto Engenharia / DER-PB)
Viaduto sobre a BR-101/PB na interseção com a Rodovia PB-016 no Município do Conde com extensão de 44m e largura de 22,80m em concreto protendido (Projeto Engenharia / DER-PB)
Viaduto do Nó Viário do Kilamba (acesso ao novo Aeroporto Internacional), Luanda, Angola, com extensão de 99m e largura de 33,65 m em concreto ptotendido e fundações em microestacas de ferro dúctil.  (Carmon Reestrutura Lda / Ministério da Construção)
Viaduto do Nó Viário do Zango (acesso ao novo Aeroporto Internacional), Luanda, Angola, com extensão de e largura de 33,65 m em concreto ptotendido e fundações em microestacas de ferro dúctil.  (Carmon Reestrutura Lda / Ministério da Construção)
Projeto de alargamento da ponte sobre o rio Mugige em Angola com extensão de 47m em concreto armado (Carmon Reestrutura Lda)
Ponte sobre o Rio Pirapama no Distrito Industrial do Cabo de Santo Agostinho-PE com extensão de 40m em concreto protendido e fundações em estacas metálicas (Projetec / AD DIPER)
Viaduto na estaca 30 da Rodovia BR-304/RN em Macaíba com extensão de 70m e largura de 23,40m em concreto protendido e fundações em estacas hélice contínua  (Ivaí Engenharia de Obras / DNIT)
 Viaduto na estaca 149 da Rodovia BR-304/RN em Macaíba com extensão de 80m e largura de 23,40m em concreto protendido e fundações em estacas hélice contínua  (Ivaí Engenharia de Obras / DNIT)
Viaduto na estaca 298 da Rodovia BR-304/RN em Macaíba com extensão de 80m e largura de 23,40m em concreto protendido e fundações em estacas hélice contínua (Ivaí Engenharia de Obras / DNIT)
Ponte sobre o Rio Preto na Rodovia PB-04 em João Pessoa com extensão de 20m  em concreto protendido e fundações em estacas metálicas (Projeto Engenharia Ltda / DER-PB)
Ponte sobre o Rio Cuiá, Ligação Valentina-Mangabeira, João Pessoa-PB com extensão de 30m em concreto protendido e fundações em estacas metálicas  (Projeto Engenharia Ltda / DER-PB)
Viaduto na estaca 437 da Rodovia BR-304/RN em Macaíba com extensão de 80m e largura de 23,40m em concreto protendido 
(Ivaí Engenharia de Obras / DNIT)
Duas pontes sobre o Rio Jundiaí nas vias marginais da BR-304/RN em Macaíba com extensão de 30m em concreto protendido e fundações em estacas raiz  (Ivaí Engenharia de Obras / DNIT)
Viaduto do nó viário Gancho do Igapó na Rodovia BR-101/RN em Natal com extensão de 280m, vãos de 40m em concreto protendido e fundações em estacas escavadas  (Geosistemas / DNIT)
Viaduto do BRT integrante do Sistema Viário do Tunel de Taguatinga no Distrito Federal com extensão de 70m com superestrutura em laje oca de concreto armado e fundações em estacas barrete  (GDF /ETERC / RECONVERTE)