PROJETOS DE REFORÇO E RECUPERAÇÃO DE ESTRUTURAS E FUNDAÇÕES
Ponte da Batalha (Rio Paraíba), Rodovia PB-04, Santa Rita-PB com extensão de 90m. Projeto de reforço das fundações (estacas raiz) e de reforço e alargamento da superestrutura (Jatobeton Engenharia Ltda / DER-PB)
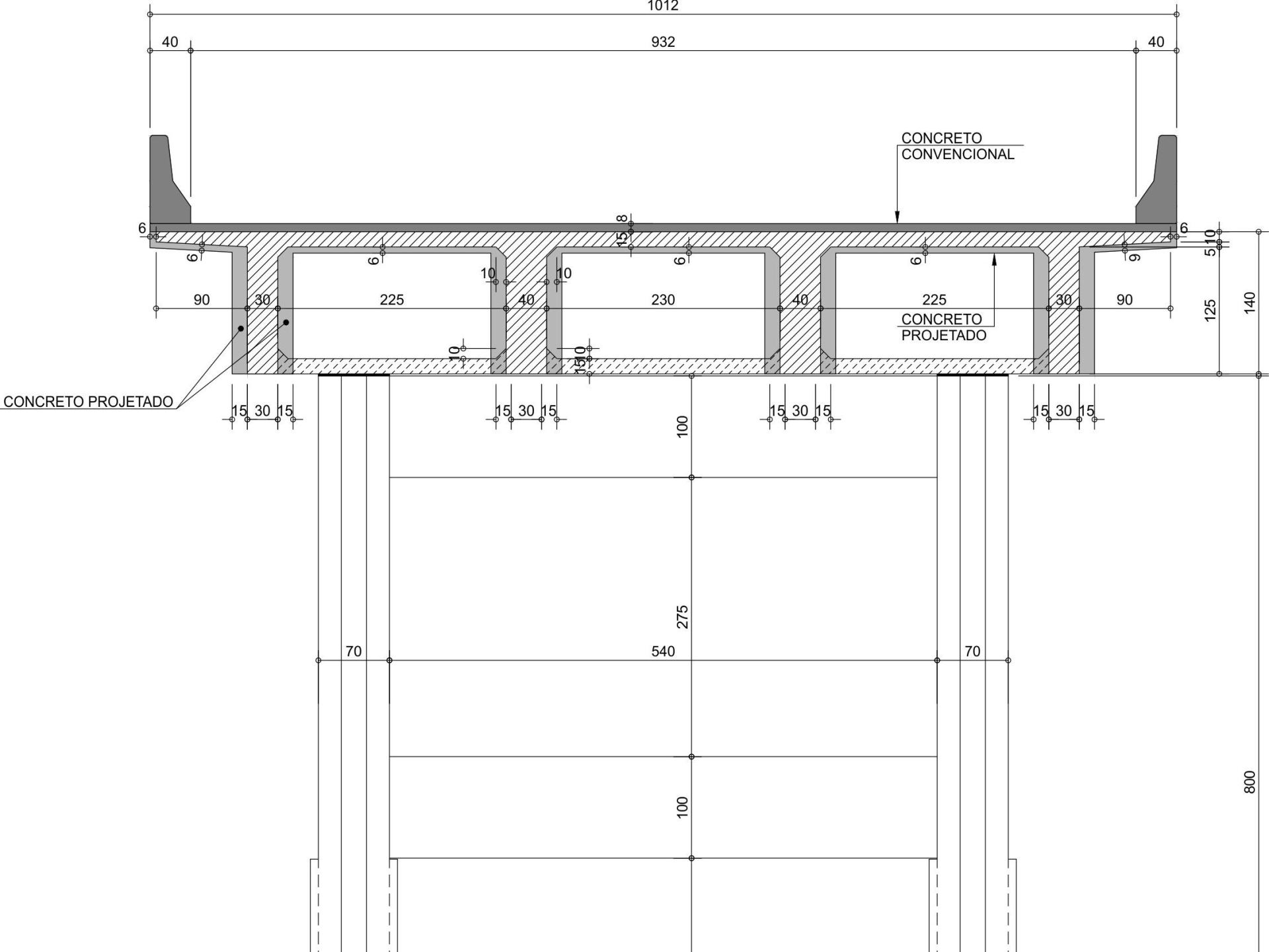
Ponte sobre o Rio Paraíba em Itabaiana- PB com extensão de 300m.  Projeto de reforço estrutural e alargamento
(Jatobeton Engenharia / DER-PB)
Ponte sobre o Rio Ingá, Rodovia PB-66, Ingá-PB. Projeto sistema de macaqueamento, projeto de  reforço das fundações em estacas raiz  e projeto de reforço da estrutura com adequação para o trem tipo Classe 450 kN (Projeto Engenharia / DER-PB)
Ponte sobre o Rio Lucala com extensão de 74m (projeto de reforço e alargamento), Angola (Engevia / INEA)
Ponte sobre o Rio Poxim, Aracaju-SE. Projeto do sistema para macaqueamento para substituição dos aparelhos de apoio e recuperação estrutural dos dentes gerber (Jatobeton Engenharia / DER-SE)
Projeto de reforço estrutural com utilização de protensão do Viaduto Várzea Grande (interseção BR-101/BR-230) em Bayeux-PB com extensão de 35m e adequação da obra para o trem tipo Classe  450 kN (JBR Engenharia / DNIT)
Projeto de reforço estrutural das vigas principais da passarela de pedestres sobre a Rodovia BR-232 no Distrito Industrial do Curado, Recife, Peranmbuco. (Jatobeton Engenharia / DER-PE)
Ponte sobre a Lagoa do Roteiro (Ponte do Gunga), Rodovia AL-101. Projeto de reforço estrutural da fundação em tubulões
(Jatobeton Engenharia / DER-AL)
Projeto de reconstrução das lajes do tabuleiro e verificação estrutural dos projetos de dois viadutos na Rodovia BR-101/RN em Goianinha
 com extensão de 40m (Jatobeton Engenharia / DNIT)
Viaduto na Rodovia PE-60 no Município do Cabo de Santo Agostinho. Reforço estrutural das vigas principais em concreto armado e lâminas de fibra de carbono em função da limitação do gabarito vertical sob o viaduto (Jatobeton / DER-PE)